Overview

  • Cape Cod
  • Property Type
  • 1
  • Bedroom
  • 2
  • Bathrooms
  • 1
  • Garage
  • 1151

Description

Property Documents

Norwegian Series: C6-26 - Floor Plan

Address

Details

Updated on May 25, 2021 at 4:00 am
  • Property Size: 1151
  • Bedroom: 1
  • Bathrooms: 2
  • Garage: 1
  • Property Type: Cape Cod
  • Storeys: 1

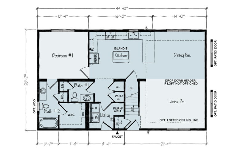
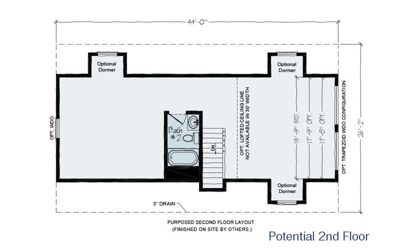
Floor Plans

image

Description:

image

Description:

Mortgage Calculator

Monthly
  • Principal & Interest
  • Property Tax
  • Home Insurance
  • PMI
$
$
%
$
$
$

Contact Information

View Listings
Contact Thorne's
  • Contact Thorne's

Enquire About This Property

0 Review

Sort by:
Leave a Review

Leave a Review

Compare listings

Compare
Contact Thorne's
  • Contact Thorne's