Overview

  • Cape Cod
  • Property Type
  • 2
  • Bedrooms
  • 1
  • Bathroom
  • 1
  • Garage
  • 1045

Description

Property Documents

Huron Series: C16-30 - Floor Plan

Address

Details

Updated on June 1, 2021 at 11:25 am
  • Property Size: 1045
  • Bedrooms: 2
  • Bathroom: 1
  • Garage: 1
  • Property Type: Cape Cod
  • Storeys: 1

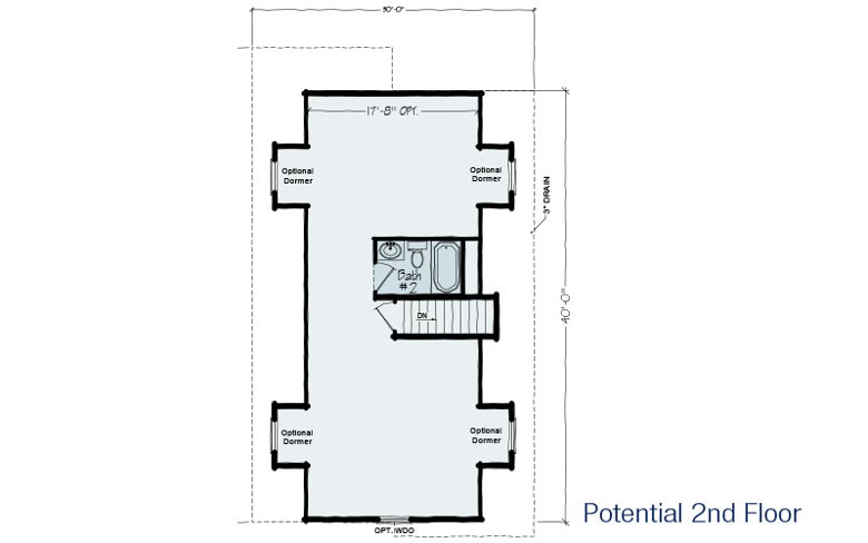
Floor Plans

image

Description:

image

Description:

Mortgage Calculator

Monthly
  • Principal & Interest
  • Property Tax
  • Home Insurance
  • PMI
$
$
%
$
$
$

Contact Information

View Listings
Contact Thorne's
  • Contact Thorne's

Enquire About This Property

0 Review

Sort by:
Leave a Review

Leave a Review

Compare listings

Compare
Contact Thorne's
  • Contact Thorne's